Modbury Heights

14 Conyngham Ave

To Finalise an Estate

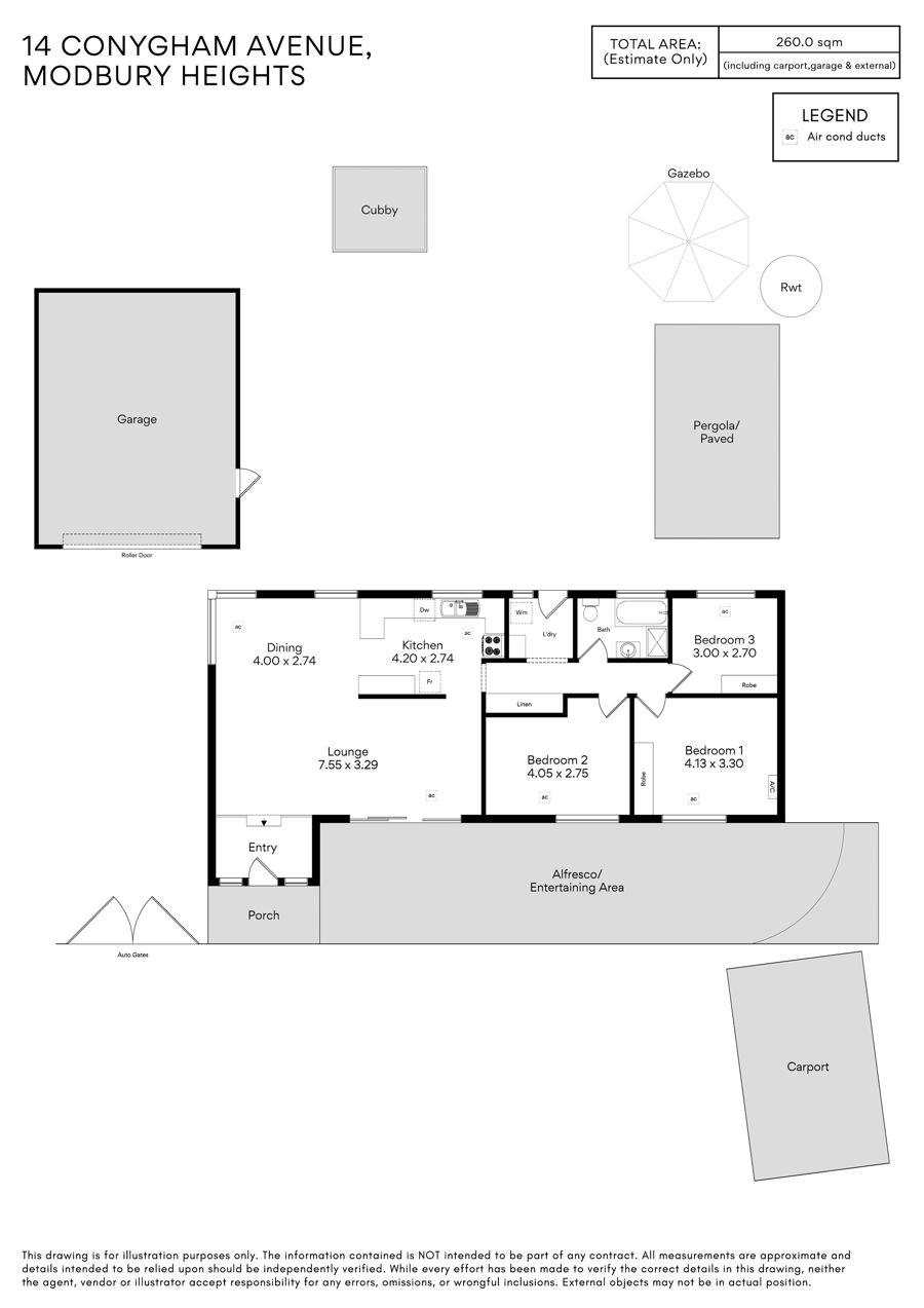
Set on a generous 631sqm (approx.)and a 24M frontage (approx), this property presents a rare and exciting opportunity for developers, renovators, and savvy investors. Zoned General Neighbourhood, the block offers excellent potential for subdivision and redevelopment (subject to council consent), making it a strategic addition to any development portfolio.

Whether you're looking to subdivide, redevelop, or build your dream project, this site ticks all the right boxes.

Perfectly positioned in the heart of Modbury Heights, this property is surrounded by a host of local amenities, including:
• Walking distance to local parks and reserves
• Just minutes to Westfield Tea Tree Plaza, Modbury Triangle Shopping Centre, and local cafes
• Excellent access to public transport, including the O-Bahn interchange for a direct route to the Adelaide CBD (approx. 14km away)

Whether you're looking to unlock the value of the land or secure a solid investment for the future, this is a golden opportunity not to be missed.

Disclaimer: All information provided has been obtained from sources we believe to be accurate. However, interested parties are advised to make their own enquiries and seek independent advice to verify the accuracy of the details, zoning, and development potential (subject to council consent). Neither the agent nor the vendor accepts any liability for any errors or omissions.

Sold for $650,000

3
1
3

Property Features

  • Property ID
    21528013
  • Land Size
    631 sqm
  • Total car spaces
    2

Contact

Share